Bei solchen Aufgaben am besten immer mal eine kleine Zeichnung machen, damit man sieht, was da passiert. Dann kommt man auch direkt viel leichter auf eine mögliche Lösung.
Was du weißt: quadratisches Grundstück, an einer Seite 2m Streifen weg, an angrenzender Seite zum 2m Streifen noch ein 6m Streifen weg. Zusätzlich weißt du, dass die weggefallene Fläche 204m² ist
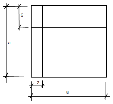
Kurz aufgezeichnet:

Fläche, die insgesamt wegfällt ist: (2 * a) + (6 *a) - (2 * 6) = 204m²
Die Fläche (2 *6) musst du ein mal wieder abziehend, weil du die ansonsten doppelt hast, da die beiden Streifen an der Stelle übereinander liegen.
8a - 24 = 204
8a = 180 -> a = 30
a² = 30² = 900m²